
Familiebolig på Stallabrotet
Familiebolig på 250 m² over to etasjer på en terrengert tomt på Vestlandet. Huset er tilpasset terrenget slik at man får utnyttet de flateste partiene på tomta til adkomst og forplass på nedre plan, og til en skjermet hage i kontakt med hovedfunksjonene i øvre plan. Huset griper tak i utsikten og gjør landskapet til en del av romopplevelsen.
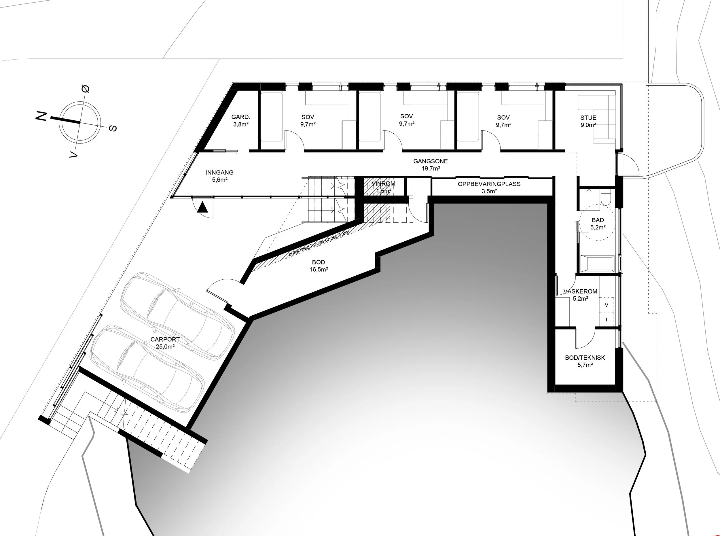
Plan 1. etasje
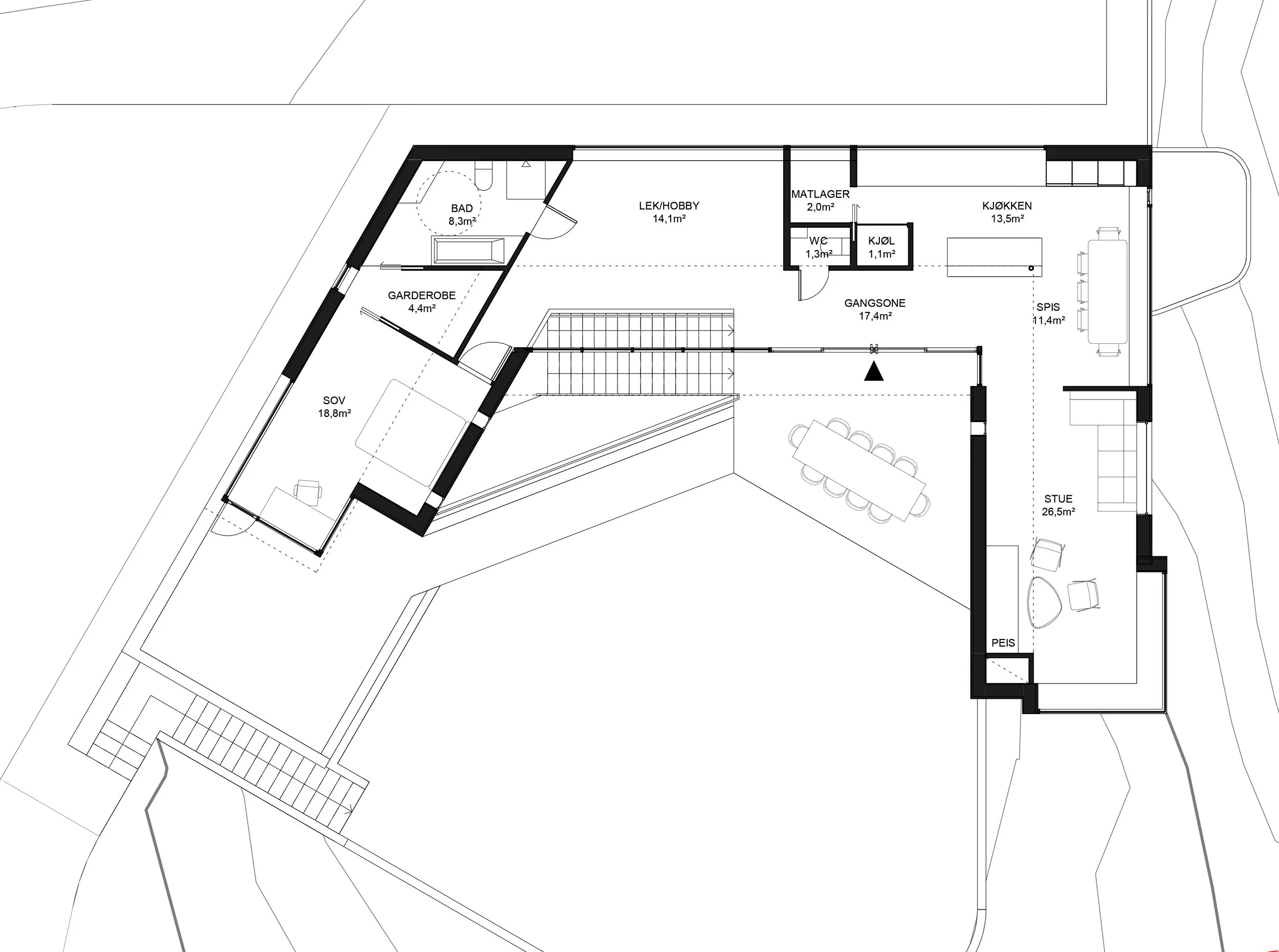
Plan 2. etasje




